| HOSTEL LIFE 
Hostel Life is so diffrent. Are you ready for one ?
 | ||
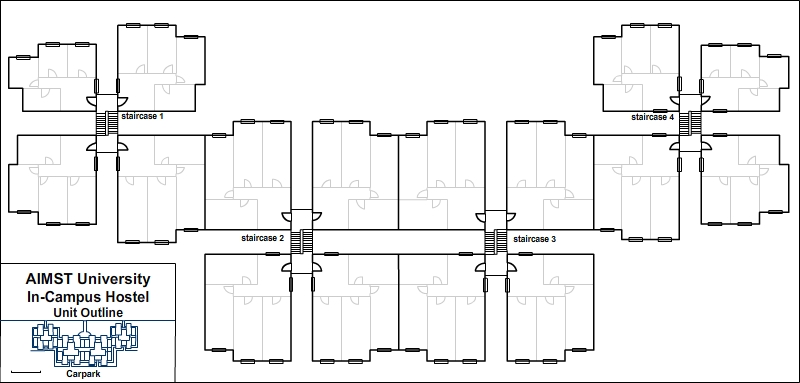
| The Hostel BlockA Complete Structural Introduction to AIMST In-Campus Student Hostel  Image: Aimst In-Campus Hostel Panoramic View From The Open Air Car Park.  Image: The Typical Schematic Diagram of the Ground Floor of Aimst Hostel block, showing functional area and rooms. (Note: There are minor diffrences between every hostel block.)  Image: The Typical Schematic Diagram of the 1st to 4th Floor of Aimst Hostel block, showing functional area and rooms. (Note: There are minor diffrences between every hostel block.)  Image: Panoramic View from the ground floor, showing each compartment of the hostel.  Image: The Typical Schematic Diagram of the Aimst Hostel block, showing each house unit.(Note: There are minor diffrences between every hostel block.) | ||